architektur
visualisierung
webdesign
entwurfsplanung
genehmigungsplanung
bauaufnahmen
brandschutzpläne
kontakt
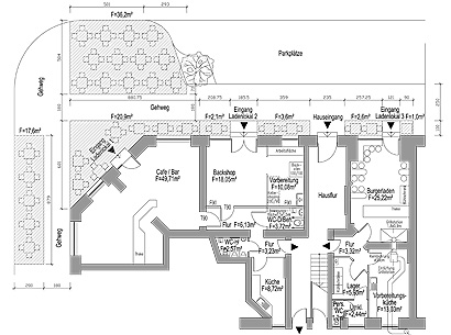
Gaststättenrechtliche Erlaubnis
Für eine Aussenbewirtschaftung muss dem Antrag ein Plan beigefügt werden,
der die zu nutzende Fläche und die Anzahl der Sitzplätze zeigt.
impressum