architektur
visualisierung
webdesign
entwurfsplanung
genehmigungsplanung
bauaufnahmen
brandschutzpläne
kontakt
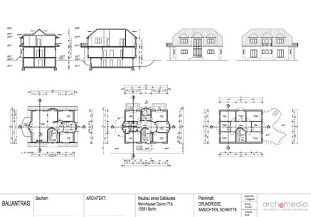
Bauantrag
Die Errichtung oderÄnderung einer baulichen Anlage ist zumeist
genehmigungspflichtig. Es gibt nur wenige Ausnahmen.
impressum